Projekty wnętrz
Wzornictwo
AV
Współpraca
Kontakt
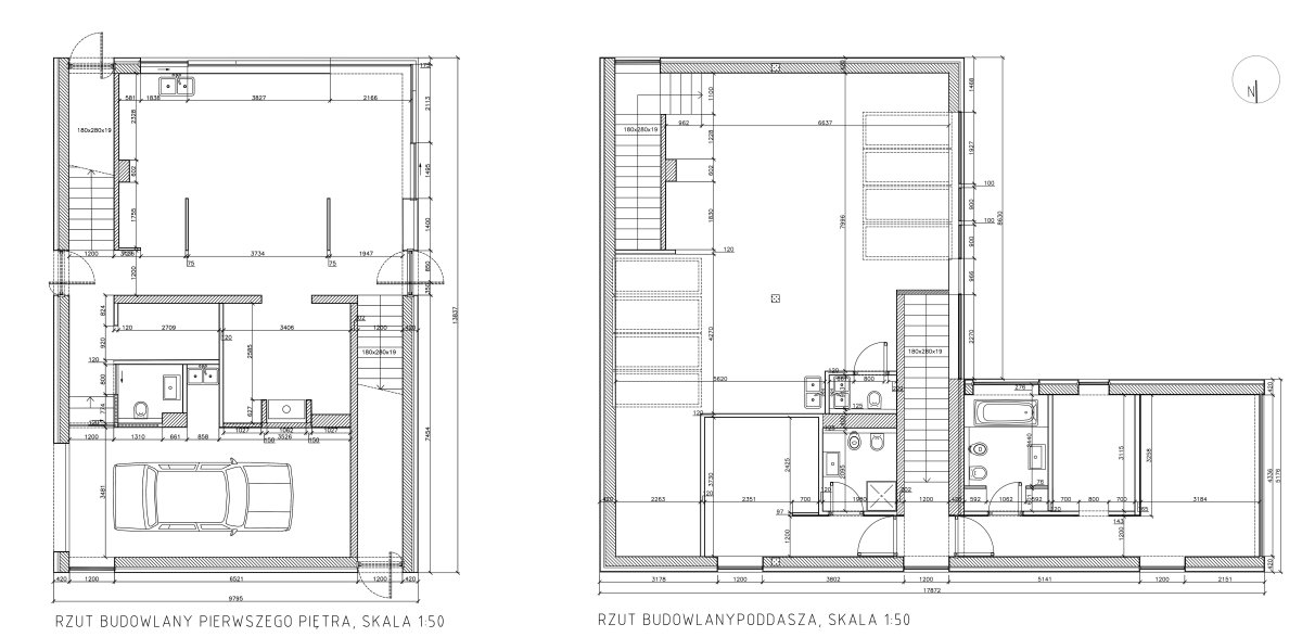
MICHALINO
projekt koncepcyjny domy jednorodzinnego
previus project
next project
Szukaj